Benedikt Haab

Benedikt Haab

bild anklicken

/

klikni sliko

/

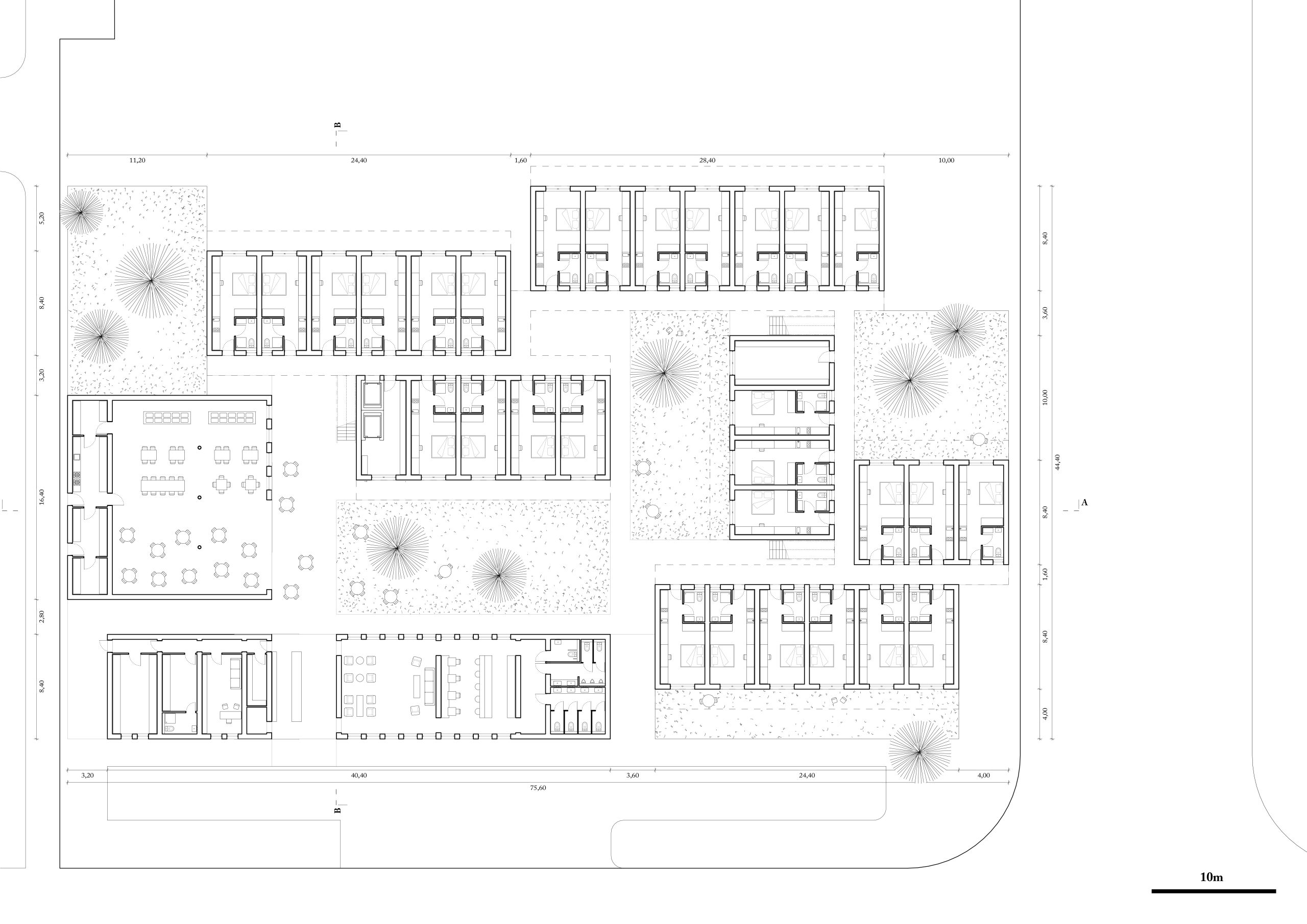
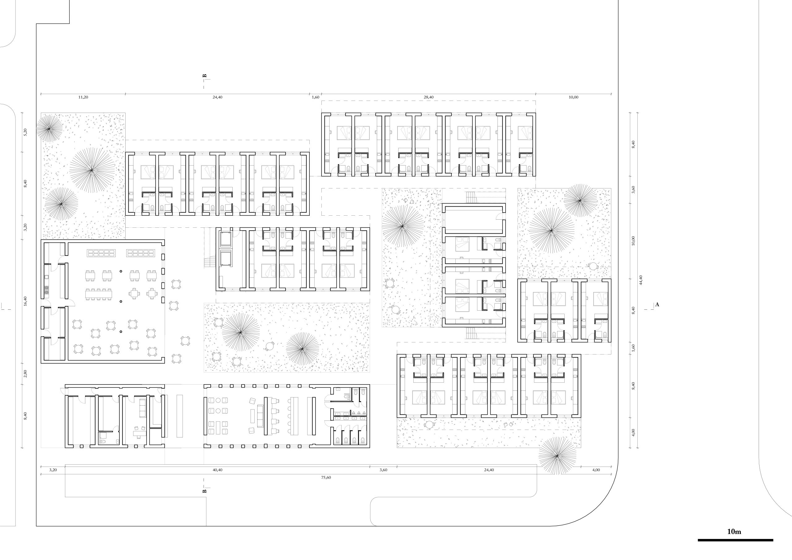
GÄSTEHAUS IN KENIA – Nairobi

Benedikt Haab

bild anklicken

/

GÄSTEHAUS IN KENIA – Nairobi

In Zusammenarbeit mit der Universität Leuven in Belgien und der Universität Ljubljana gab die Weltgesundheitsorganisation (WHO) einen Forschungs- und Entwurfsvorschlag für ein medizinisches Ausbildungszentrum in Nairobi, der Hauptstadt Kenias, in Auftrag. Als Teil dieses medizinischen Zentrums wurde ein Gästehaus entworfen. Der Entwurf basiert auf eingehenden Recherchen zu den ökologischen, kulturellen und wirtschaftlichen Gegebenheiten der Region und berücksichtigt die Verfügbarkeit lokaler Materialien sowie traditionelle Bauweisen. Ein modularer Ansatz ermöglicht zudem die Anpassung an die Bedürfnisse des medizinischen Zentrums.

 

Ort:

Nairobi, KEN

Jahr:

2022

Status:

Entwurf

Betreuung:

Universität Ljubljana