Benedikt Haab

Benedikt Haab

bild anklicken

/

klikni sliko

/

NEUE BIBLIOTHEK – Trondheim

Benedikt Haab

bild anklicken

/

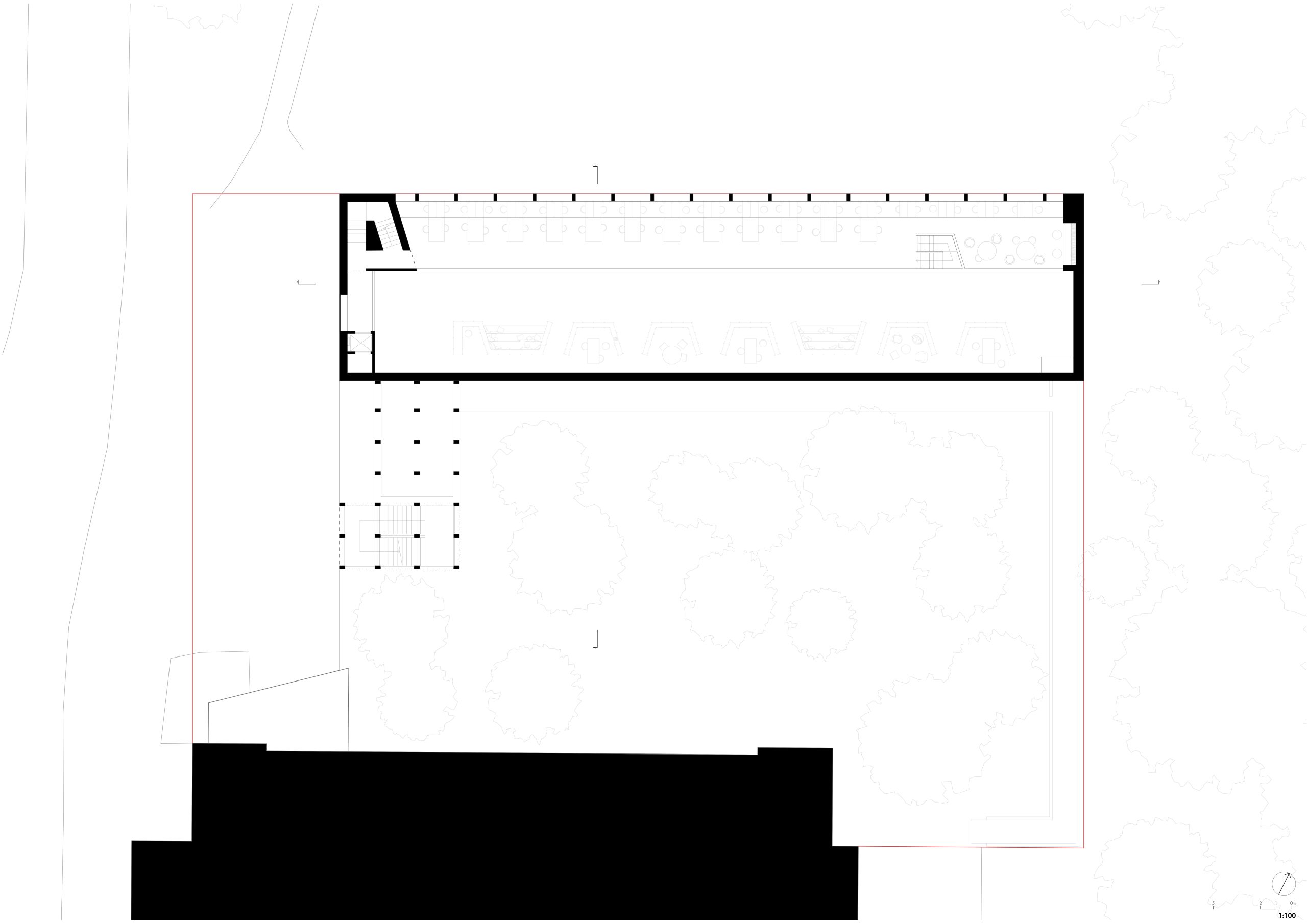
NEUE BIBLIOTHEK – Trondheim

Eine neue Bibliothek für das Architekturinstitut der Norwegian University of Science and Technology in Trondheim. Neben der Sammlung architekturwissenschaftlicher Literatur bietet das Gebäude ruhige und abgeschiedene Lernplätze sowie offene Bereiche und öffentliche Treffpunkte.

Die vollständig aus Holz errichtete Bibliothek besticht durch ein architektonisches Spiel zwischen massiven und leichten Elementen, welche eine einzigartige Atmosphäre schaffen und durch einen atemberaubenden Blick über das Tal ergänzt werden. Die Dachterrasse dient als Erweiterung des Vorplatzes und bildet eine öffentliche Plattform für Veranstaltungen und zum Verweilen.

Ort:

Trondheim, NOR

Jahr:

2025

Status:

Entwurf

Betreuung:

Norwegian University of Science and Technology