Benedikt Haab

Benedikt Haab

bild anklicken

/

klikni sliko

/

PÅ SKRÅNINGEN – Trondheim

Benedikt Haab

bild anklicken

/

PÅ SKRÅNINGEN – Trondheim

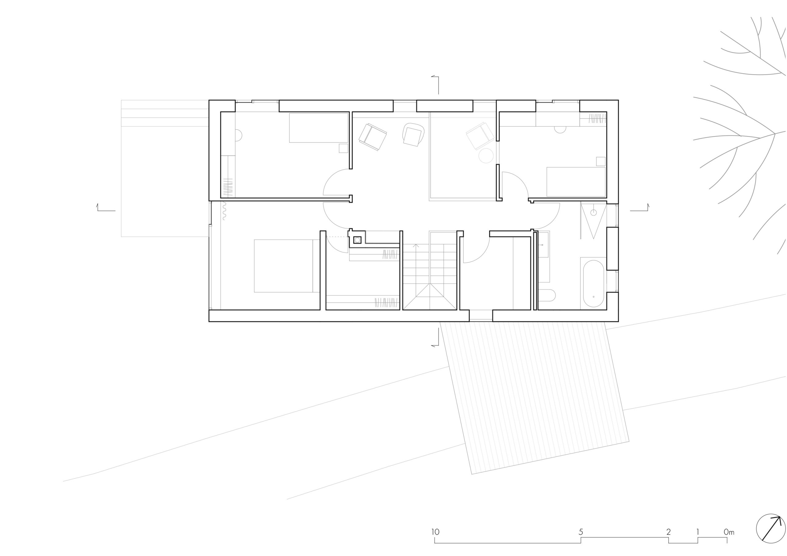
Ein Haus mit vier Schlafzimmern an einem Hang. In einer kurzen Entwurfsstudie entstand die Idee eines kleinen Einfamilienhauses auf einer Halbinsel nahe Trondheim. Basierend auf dem Konzept des „Raumplans“ sind die einzelnen Teile des Hauses durch interessante dreidimensionale Raumkonfigurationen miteinander verbunden und bilden so einen harmonischen Gesamtraum. Die Hanglage des Grundstücks wird genutzt, um die Qualitäten dieses Konzepts auszuschöpfen. Der Entwurf experimentiert mit einem innovativen Ansatz zur Barrierefreiheit und macht eine Rampe zum zentralen architektonischen Element.

Ort:

Trondheim, NOR

Jahr:

2025

Status:

Entwurf

Betreuung:

Norwegian University of Science and Technology